
Las cubas de los termos eléctricos HYDRINOX están fabricadas con un acumulador de acero inoxidable que cumple con las más rigurosas exigencias de higiene y sanidad. En la superficie interior del termo eléctrico Hydrinox se forma una patina natural que lo protege de la corrosión incluso en instalaciones con aguas extremadamente corrosivas.
Garantía de 10 años en la cuba de inoxidable.
El termo eléctrico HYDRINOX se sirve con un equipamiento completo en el que se pueden destacar los manguitos dieléctricos diseñados especialmente para evitar roturas en los mismos por diferencias de coeficiente de dilatación.
Este producto se acompaña de una amplia gama de accesorios opcionales que facilitan la instalación.
El aislamiento térmico de espuma de poliuretano rígido de gran espesor, exento de CFC, minimiza las pérdidas caloríficas del acumulador, haciendo incomparables sus prestaciones para la acumulación de agua caliente sanitaria.
El proceso de inyección con el que se aplica el aislamiento evita puentes térmicos, al cubrir la superficie exterior en una sola pieza.
| CARACTERÍSTICAS | HYDRINOX 500 |
|---|---|
| Capacidad total L | 505 |
| Posición | Suelo |
| Potencia eléctrica | Opcional |
| Opción alimentación eléctrica | Monofásica o trifásica |
| Presión máxima bar | 7 |
| HYDRINOX 500 | |
|---|---|
| Termostato (con resistencia) | |
| Manguitos dieléctricos | |
| Válvula de seguridad | |
| Resistencia Trifásica 6 kW | |
| Resistencia Monofásica 6 kW | |
| Kit termómetro | |
| Protección catódica SANIT S 500 | |
| Kit Peana HYDRINOX 500 |
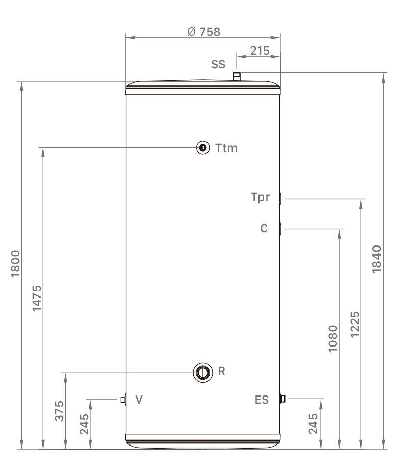
HYDRINOX 500

| V: Vaciado | R: Toma resistencia | Ttm: Toma para termómetro | SS: Salida agua caliente sanitaria | ES: Entrada agua fría sanitaria | Tpr: Toma Protección catódica | C: Toma recirculación |
|---|