

La caldera de gasóleo JAKA HFD CONDENS aprovecha el efecto de la condensación de los gases de la combustión alcanzando rendimientos superiores al 103% sobre el P.C.I.
La nueva gama de calderas de condensación a gasóleo JAKA HFD CONDENS cumple con las exigencias en rendimiento de la nueva directiva ErP. Estas calderas alcanzan un alto rendimiento y aportan un importante ahorro de consumo al usuario.
Aprovechan el efecto de la condensación de los gases de combustión y consiguen ahorros de hasta un 30% respecto a las calderas convencionales.
Para aprovechar el efecto de la condensación es necesario reducir la temperatura de los gases de combustión por debajo de la temperatura de punto de rocío. Es en el condensador donde se produce esta reducción de temperatura de los gases. Este condensador cuenta con un especial diseño que evita que los inquemados de la combustión se depositen en la superficie de intercambio del condensador reduciendo los costes de mantenimiento.
El fuerte aislamiento acústico sobre el cuerpo y los envolventes de la caldera de gasóleo, así como la utilización de un quemador estanco, convierten a esta caldera en una compañera discreta.
La caldera JAKA HFD CONDENS permite reducir las emisiones contaminantes de CO2, contribuyendo a la disminución del efecto invernadero, debido a que esta caldera de condensación a gasóleo consume menos energía para un mismo servicio de calefacción que una caldera convencional.
El cuerpo de la caldera está fabricado en fundición especial lo que le asegura una larga vida.
El diseño está al servicio de la funcionalidad para el profesional. Un equipamiento sencillo y versátil permite adaptarla a cualquier tipo de instalación de una manera rápida. Al no utilizar aire de la estancia para la combustión la caldera permite ser instalada incluso en habitaciones sin ventilación, facilitando de esta manera su ubicación.
Al tener una temperatura de humos baja y un pirostato de seguridad, la caldera de condensación a gasóleo JAKA HFD CONDENS permite ser instalada con tubos de salida de gases en polipropileno que facilitan la instalación y reducen el coste.
Para acción sobre el circuito directo o mezclado, en función de la temperatura exterior.
Opcionalmente se ofrece un kit que incluye una válvula mezcladora con servo motor para ajustar la temperatura de impulsión a la demandada.
Equipamiento: Vaso de expasión Válvula 3 vías Motor válvula 3 vías Bomba de circulación Válvula anti-retorno Válvula de seguridad.
Este kit se debe conectar a la regulación LAGO V o LAGO BVS.
| CARACTERÍSTICAS | Jaka 20 HFD CONDENS | Jaka 30 HFD CONDENS |
|---|---|---|
| Potencia útil 50º C / 30º C KW | 20,3 | 30,2 |
| Potencia útil 80º C / 60º C KW | 19,1 | 28,7 |
| Clase eficiencia calefacción |
| JAKA HFD CONDENS | |
|---|---|
| Cuerpo de hierro fundido | |
| Envolventes con revestimiento EPOXY | |
| Quemador | |
| Frente de mandos montado compuesto de: | |
| - Termostato de regulación | |
| - Termostato de seguridad | |
| - Interruptor marcha/paro luminoso | |
| - Termómetro | |
| - Precableado para regulación climática LAGO | |
| Vaso de expansión | |
| Válvula 3 vías | |
| Motor válvula 3 vías | |
| Bomba de circulación | |
| Válvula anti-retorno | |
| Válvula de seguridad | |
| Accesorios salida de gases | |
| Kit hidráulico para JAKA HFD CONDENS | |
| Control y regulación (necesario para el kit hidráulico JAKA HFD CONDENS) | |
| Filtro con desgasificador (Tiger Loop) | |
| Termostato conectable CONFORT WiFi |
JAKA HFD CONDENS

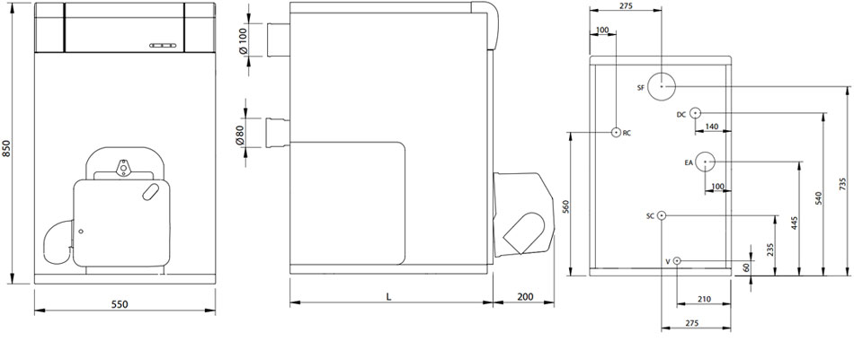
| MODELO | L | DC-RC |
|---|---|---|
| JAKA HFD 30 CONDENS | 640 | 1" |
| JAKA HFD 20 CONDENS | 540 | ¾" |