

La gama de calderas de gasoil SIRENA HFD está compuesta de una gama de calderas insonorizadas para calefacción o calefacción y producción de agua caliente sanitaria.
En toda la gama se puede elegir entre calderas con control electrónico o calderas controladas con un control eléctrico.
El diseño de esta gama de calderas de gasoil de baja temperatura está pensado para una instalación rápida y sencilla, al incluir un equipamiento completo de serie. Dentro de este, destaca el interruptor de flujo sin membrana, el vaso de expansión y los purgadores automáticos de doble seguridad.
La caldera de gasoil SIRENA HFD incorpora un circuito hidráulico de doble bomba, acompañado de un potente intercambiador, de forma que es capaz de suministra hasta 17,8 litros o hasta 22 litros (según versión) por minuto de agua caliente sanitaria, con un incremento de 30ºC de temperatura.
Debido al especial diseño de su quemador, esta caldera de gasoil de baja temperatura puede ser instalada con un sistema de salida de gases de 80 mm sin aislamiento, incluso con tramos horizontales en su recorrido, lo que puede suponer un importante ahorro en el costo de la instalación.
| MODELO | POTENCIA ÚTIL kW | PRODUCCIÓN ACS L/MIN ΔT30ºC | CLASE EFICIENCIA CALEFACCIÓN | CLASE EFICIENCIA ACS | PERFIL ACS |
|---|---|---|---|---|---|
| SIRENA MIX DUO HFD 30 | 28,1 | 13,4 | XL | ||
| SIRENA MIX DUO HFD 40 | 39,4 | 18,8 | XL | ||
| SIRENA CAL HFD 30 | 28,1 | - | - | - | |
| SIRENA CAL HFD 40 | 39,4 | - | - | - | |
| SIRENA CAL HFD 50 | 50,8 | - | - | - |
| SIRENA MIX DUO HFD | SIRENA CAL HFD | |
|---|---|---|
| Quemador | ||
| Bomba de calefacción | ||
| Vaso de expansión | ||
| Válvula de seguridad | ||
| Llave de llenado | ||
| Filtro de gasóleo | ||
| Latiguillos conexión quemador | ||
| Bomba de primario ACS | ||
| Interruptor de flujo | ||
| Fluxostato | ||
| Limitador de caudal ACS | ||
| Programador horario | ||
| Acumulador SANIT | ||
| Accesorios salida de gases |
SIRENA HFD

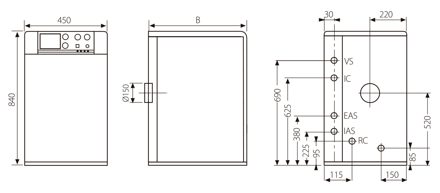
| IC: Ida calefacción | RC: Retorno calefacción | VS: Válvula de seguridad | EAS: Entrada ACS | IAS: Salida ACS |
| IC/RC | EAS/IAS | B | |
|---|---|---|---|
| SIRENA HFD 30 | 3/4”M | 1/2”M | 650 |
| SIRENA HFD 40 | 1”M | 1/2”M | 750 |
| SIRENA HFD 50 | 1”M | - | 850 |