

La SIRENA HFDE es una gama de calderas de gasoil de baja temperatura con cuerpo de combustión en hierro fundido y con elevado nivel de rendimiento de combustión (niveles superiores al 93% del PCI).
Esta gama de calderas de gasoil ha sido adaptada a las exigencias y requerimientos, en cuanto a rendimiento y etiquetado, de la nueva Directiva Europea ErP.
La gama incluye 2 versiones, solo calefacción con potencias de 29, 40, y 52 kw, y calefacción + agua caliente sanitaria con potencias de 29 y 40 kw. La versión solo calefacción va equipada con las tomas hidráulicas y eléctricas para conexionar a un interacumulador de agua caliente sanitaria.
El funcionamiento de esta caldera de gasoil de baja temperatura es totalmente electrónico gracias a su especial diseño, de muy fácil manejo para el usuario.
Las calderas de gasoil de esta gama están equipadas con un sistema electrónico que modula la bomba de circulación de ACS, de forma que se estabiliza la temperatura de consumo independientemente del caudal de agua requerido y de la temperatura de agua de entrada a la caldera. Esto permite trabajar con baja temperatura del hogar, menores temperaturas de humos y un mejor aprovechamiento del calor latente de los humos de combustión.
El diseño de esta gama de calderas de gasoil de baja temperatura está pensado para una instalación rápida y sencilla, al incluir un equipamiento completo de serie. Dentro de este, destaca el interruptor de flujo sin membrana, el sistema de doble bomba y los purgadores automáticos de doble seguridad.
Los productos incorporan numerosos sistemas (falta de agua, bloqueo de bombas, anti-inercia, anti-hielo, prevención de legionelosis, etc.) que aseguran un correcto funcionamiento y una larga vida al producto.
Esta gama de calderas de gasoil de baja temperatura permite opcionalmente la conexión al control remoto E20, con el que se pueden programar las horas de funcionamiento y la temperatura deseada en cada momento, así como acceder desde el lugar donde se ubique a la información de cualquier alarma que se produzca.
| MODELO | POTENCIA ÚTIL kW | PRODUCCIÓN ACS L/min ΔT30ºC | CLASE EFICIENCIA CALEFACCIÓN | CLASE EFICIENCIA ACS | PERFIL ACS |
|---|---|---|---|---|---|
| SIRENA MIX DUO HFDE 30 | 28,1 | 13,4 | ![]() |
![]() |
XL |
| SIRENA MIX DUO HFDE 40 | 39,4 | 18,8 | ![]() |
![]() |
XL |
| SIRENA CAL HFDE 30 | 28,1 | - | ![]() |
- | - |
| SIRENA CAL HFDE 40 | 39,4 | - | ![]() |
- | - |
| SIRENA CAL HFDE 50 | 50,8 | - | ![]() |
- | - |
| SIRENA MIX DUO HE | SIRENA CAL HE | |
|---|---|---|
| Válvula de retención de calefacción | ||
| Bomba de calefacción | ||
| Bomba de primario ACS | ||
| Transductor de presión | ||
| Válvula de seguridad | ||
| Purgador automático | ||
| Válvula de retención de verano | ||
| Vaso de expansión de calefacción | ||
| Llave de llenado | ||
| Caldera de hierro fundido | ||
| Llave de vaciado | ||
| Quemador | ||
| Intercambiador de serpentín | ||
| Interruptor de flujo | ||
| Limitador de caudal de ACS | ||
| Antibloqueo de bombas | ||
| Limitador de presión mínima | ||
| Antihielo | ||
| Modulación ACS | ||
| Conexión eléctrica para acumulador | ||
| Programador diario analógico | ||
| Accesorios salida de gases | ||
| Kit de suelo radiante SRF2-30 (para HFD-30) | ||
| Kit de suelo radiante SRF2-40 (para HFD-40 / HFD-50) | ||
| Sonda para acumulador | ||
| Acumulador SANIT | ||
| Filtro con desgasificador (Tiger Loop) | ||
| Termostato conectable CONFORT WiFi |
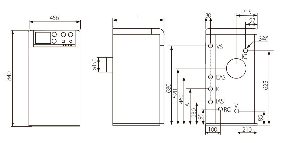
SIRENA HFDE

| IC: Ida calefacción | ICʼ: Ida calefacción opcional | RC: Retorno calefacción | EAS: Entrada ACS | IAS: Salida ACS | VS: Válvula de seguridad | V: Válvula de vaciado |
| MODELO | IC / RC | EAS / IAS | COTA L | COTA A |
|---|---|---|---|---|
| SIRENA MIX DUO HFD 30 | 3/4"M | 1/2"M | 650 | 390 |
| SIRENA MIX DUO HFD 40 | 1"M | 1/2"M | 750 | 295 |
| SIRENA CAL HFD 30 | 3/4"M | - | 650 | - |
| SIRENA CAL HFD 40 | 1"M | - | 750 | - |
| SIRENA CAL HFD 50 | 1"M | - | 850 | - |